Arelauquen
Emplazadas en lotes con vistas privilegiadas y rodeada por exuberante vegetación, se proyectaron dos casas integradas armónicamente con su entorno.
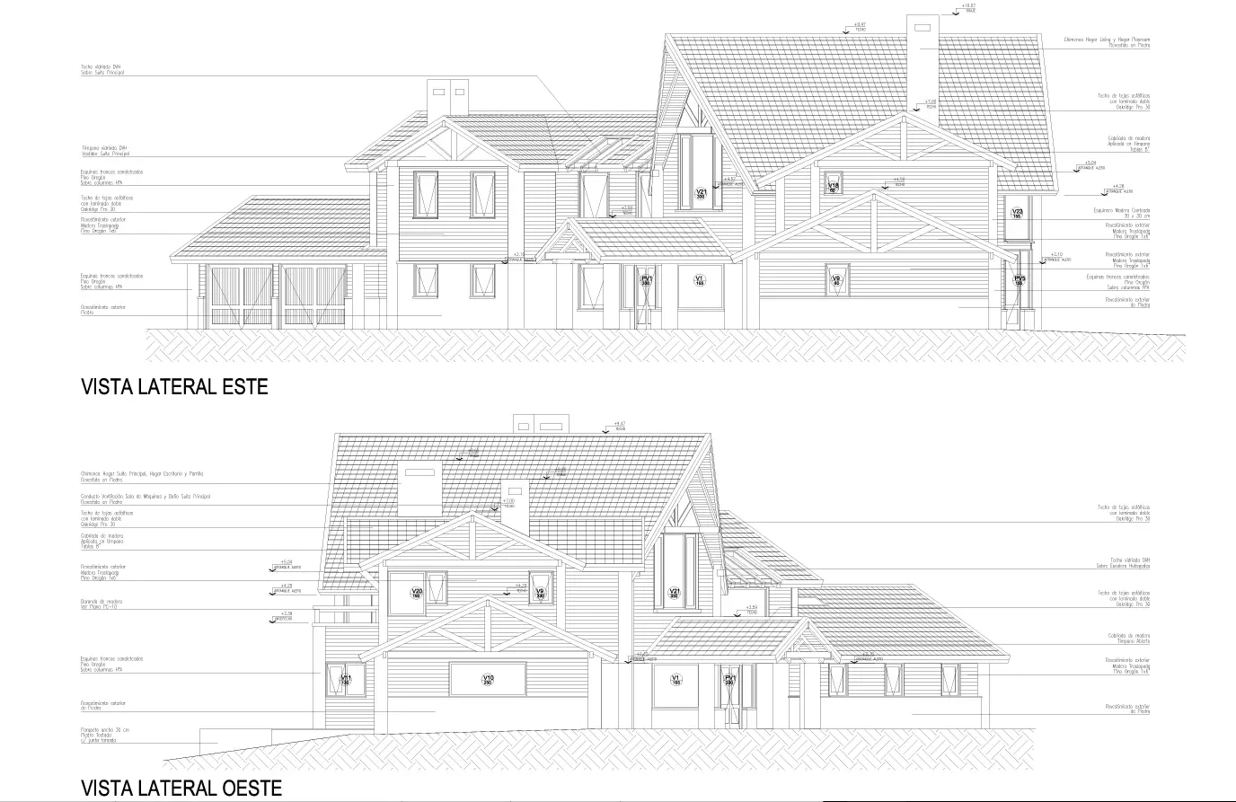
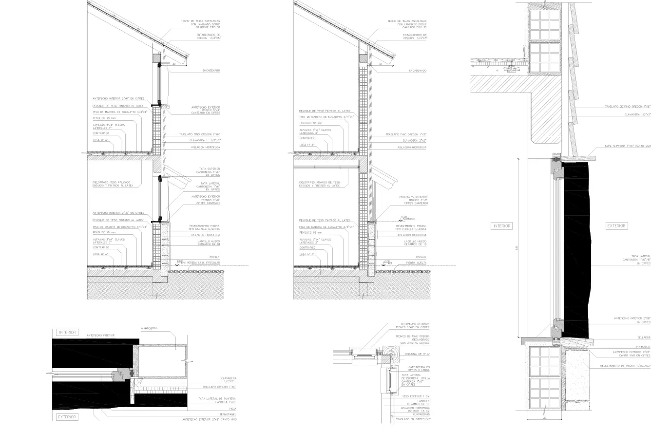
Madera y piedra aportan calidez y armonía con el paisaje dándole un carácter tradicional y acogedor. Grandes ventanas enmarcan vistas panorámicas al lago y las montañas.
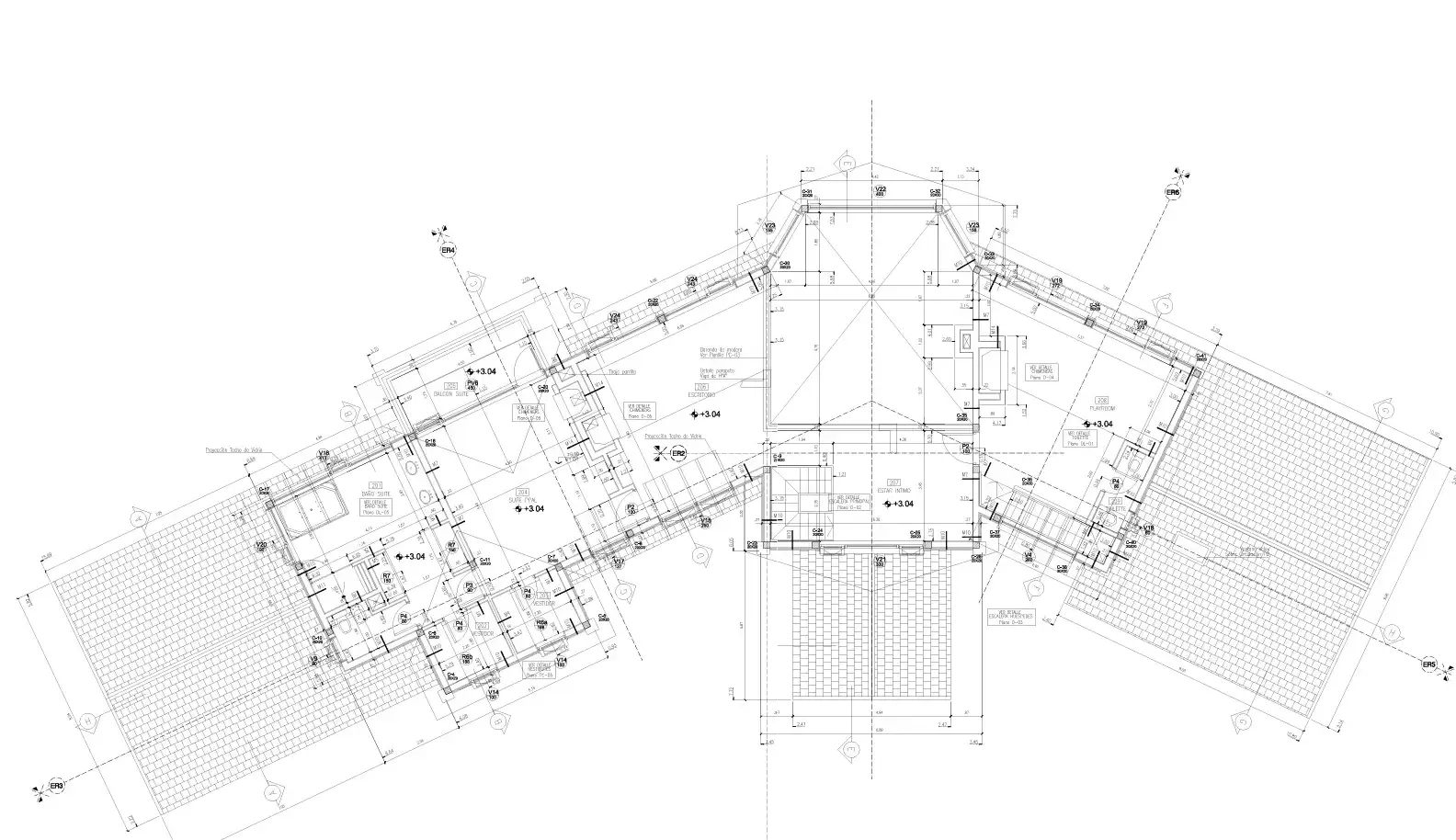
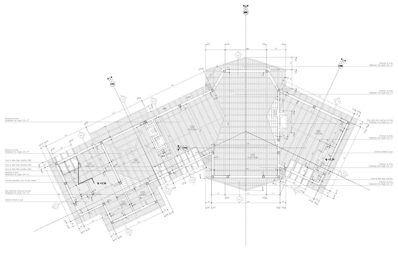
Proyecto ejecutivo
2005







